Am Freitag wird im Stadtrat unter anderem auch über einen Bebauungsplan an der Stauffenbergallee beraten. Unter dem Namen „Albertstadt Ost“ sollen auf dem Gelände östlich der Marienallee rund 600 Wohnungen entstehen. Die Planungen dafür laufen schon lange. Bereits 2015 wurde das Projekt im Ortsbeirat vorgestellt – damals waren jedoch noch 1.000 Wohnungen geplant.

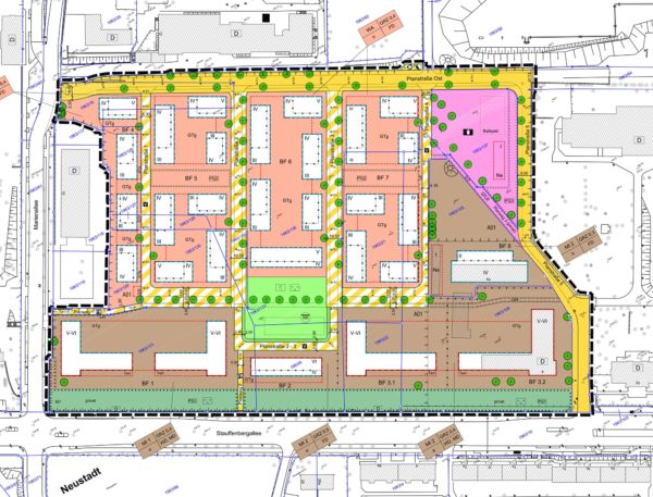
Das rund 75.000 Quadratmeter große Gebiet liegt am nördlichen Rand der Äußeren Neustadt im Übergangsbereich zur Dresdner Heide und liegt derzeit bis auf die an der Stauffenbergallee gelegene Bestandsbebauung im südöstlichen Bereich brach.
Im Norden befindet sich das Gebäude der ehemaligen Landesbibliothek, das von der Melli-Beese-Schule und einem Kindergarten des DRK genutzt wird. Im Osten grenzt das Grundstück an die Freie Alternativschule und die Landesdirektion Dresden.

An der Front zur Stauffenbergallee befindet sich eine denkmalgeschützte Sandstein Mauer. Die einzelnen Grundstücke in dem Bereich sind überwiegend im Privateigentum, ein Teil gehört der Landeshauptstadt Dresden, ein Teil der Drewag. Früher standen hier mal Kasernen.

Um das Gebiet und ein weiteres geplantes Neubaugebiet im Nordosten vernünftig zu erschließen, ist eine Straße geplant. Diese soll später einmal von der Marienallee (nördlicher Teil) bis zur Radeberger Straße (in Höhe Kleingartensparte Jägerpark) führen.
Neben den vielen neuen Wohnungen soll auch ein Teil nicht störendes Gewerbe und Handel entstehen. Außerdem ein kleiner Park und eine Fläche für die angrenzenden Schulen.
Problem mit Schulfläche
Dass die Vorplanungen so lange gedauert haben, liegt unter anderem auch an einem Konflikt um die Freifläche für die beiden Schulen. Die brauchen diese Fläche dringend, da sonst der Schulbetrieb gefährdet ist. Die Forderungen kamen schon vor vier Jahren auf, deswegen wurde der erste Bebauungsplan seinerzeit vom Bauausschuss gekippt. Nun gibt es eine Einigung zwischen den beiden Schulen und dem Investor.
Ein insgesamt rund 4.100 Quadratmeter großes Stück am Rande der Fläche wird den Schulen zur Verfügung gestellt, allerdings zur Miete. Stadtbezirksbeirat Oliver Mehl (Grüne) sagte dazu: „Ich hätte mir gewünscht, dass die Schulen die Fläche kaufen könne, das wäre langfristig die günstigere Variante gewesen.“ Allerdings ging es bei den Verhandlungen um einen hohen Preis, da der künftige Verkehrswert der Fläche angenommen wurde und nicht der aktuelle.
Dieser Preis wäre für die beiden Privat-Schulen nur schwer zu stemmen gewesen. Mehl bedauert: „Wenn man einem Investor genehmigt, auf so einer großen Fläche zu bauen, dann ist es zumutbar, dass er einen kleinen Teil der Fläche für einen für alle Seiten vertretbaren Preis abtritt.“

Sozialwohnungen geplant
Von den 600 Wohnungen wird ein Teil auch als Sozialwohnungen gebaut. Auf dem Grundstück, dass derzeit der Drewag gehört, soll die städtische „Wohnen in Dresden“ (WID) entsprechenden Wohnraum schaffen. Die WID hätte sich eine effizientere Bebauung gewünscht, so zum Beispiel die Möglichkeit, die Häuser mit sechs Etagen zu errichten.
Das ließ sich aber aus stadtplanerischen Gründen nicht umsetzen, da sich die Gebäude an den benachbarten denkmalgeschützten Häusern orientieren werden. Jetzt entstehen an der Südseite Gebäude mit fünf Etagen, wobei das Erdgeschoss für Gewerbe genutzt werden soll, die hinteren Häuser werden etwas niedriger.

Nachtrag 20 Uhr
Der Stadtrat hat Baurecht für das Areal beschlossen.

















Bitte überarbeitet diesen Artikel bzgl. der dt. Rechtschreibung und Grammatik
Hm. Ich habe jetzt drei Fehler gefunden, hoffe, das waren alle.
Zum Glück sind am Samstag die Baumärkte offen.
Da können schnell noch die Farbspaydosen besorgt werden.
Hoffentlich gibt es Hinweisschilder, damit nicht versehentlich die Sozialbauten angepinselt werden…
…..
Denkmalgeschütze Sandsteinmauer an der Stauffenbergallee und das Visualisierungbildchen passen aber nicht zusammen….
Wieso wird hier mit keinem Wort erwähnt, dass die WID (also der Investor) die Stadt Dresden selber ist?
Zitat auf deren Webseite: „Die WiD, Wohnen in Dresden GmbH & Co. KG, ist die neue kommunale Wohnungsbaugesellschaft der Landeshauptstadt Dresden.
Ziel der neuen Wohnungsbaugesellschaft ist die sichere und sozial verantwortbare Wohnungsversorgung vorrangig für benachteiligte Wohnungssuchende.“
Es besteht einerseits der Eindruck, es gebe wieder einen bösen Investor, anderseits verstehe ich dann nicht wieso es keine Lösung für die Schulen gibt. Könnt ihr hier bitte aufklären???
Hatte ich als bekannt vorausgesetzt und wie im Text geschrieben, bebaut die WID nur einen Teil der Fläche.
Aber danke für den Hinweis, hab es mal ergänzt.