17.30 Uhr beginnt ausnahmsweise am Mittwoch im Bürgersaal des Stadtbezirkamtes die 48. Sitzung des Stadtbezirksbeirates Neustadt. Unter anderem folgende Themen stehen auf der Tagesordnung:

Förderungen und Finanzierungen
Graffitiwände im westlichen Alaunpark
Im westlichen Teil des Alaunparks, der früher als Russensportplatz bezeichnet wurde, sind in den vergangenen Monaten mehrere Sportmöglichkeiten entstanden, unter anderem ein Fußballfeld und eine Kletterwand. Aktuell arbeitet das Amt für Stadtgründ und Abfallwirtschaft an der Ausführungsplanung des dritten Bauabschnitts für den Bereich. Dabei sollen Parkwege entstehen, Bäume gepflanzt werden und eine große Fläche für Ballspiele geschaffen werden. Außerdem soll eine legale Graffiti-Fläche entstehen, die aus den Mitteln des Stadtbezirks mit 37.500 Euro bezuschusst werden sollen. Weitere Informationen.
Sitzbereich, Tischtennisplatte und Texball im westlichen Alaunpark
Mit 80.000 Euro soll der Stadtbezirk die Errichtung eines Sitzbereichs an der Kletterspinne, sowie mit weiteren 80.000 Euro die Einrichutung eines Tischtennis- und Teqballbereiches auf dem Gelände unterstützen, dafür sollen die Haushaltsmittel des kommenden Jahres genutzt werden. Weitere Informationen.

Themenwochen im Projekttheater
Der Projekttheater-Verein bittet im Stadtbezirksbeirat um Unterstützung für drei Themenwochen. „Weblichkeit und Tod“, „Gewalt und Sexualität“ und „Sucht“. Die Themenwochen bestehen aus 27 Theatervorstellungen, davon sind 19 Vorstellungen für Schüler*innen. Im Anschluss an die Stücke soll es die Möglichkeit für Zuschauergesrpäche geben. Der Verein meldet einen Bedarf von 14.995 Euro an Förderung an. Weitere Informationen.
Robert-Schumann-Ehrung
Auf einen Zuschuss von 4.000 Euro hofft das Sächsische Vocalensemble für die „Robert-Schumann-Ehrung“, die seit 2010 versucht die Musikgeschichte der Stadt noch stärker ins öffentliche Bewusstsein zu tragen und auch weniger bekannte Musiker, Komponisten und Dirigenten, die Einfluss auf die kulturelle Entwicklung hatten, den Konzertbesuchern nahe zu bringen. Das Sächsische Vocalensemble plant am 16. September ein Festkonzert in der Dreikönigskirche an der Hauptstraße. Weitere Informationen.
Ausstellung Identität, Selbstbestimmung und Abwesenheit
Die Künstlerin Sandra Rosenstiel möchte ihre Ausstellung im Fotoforum Dresden, beheimatet am Neustädter Markt, mit 2.310 Euro fördern lassen. Weitere Informationen.

Kultur am Pavillon
Totgesagte leben länger. Nachdem Organisatorin Maria Helm im Juni von gestrichenen Förderungen und dem Aus der Veranstaltung berichtet, konnte sie das kleine Festival dank Spenden erst einmal für den August retten. Für die übrigen Konzerte in diesem Jahr beantragt sie noch einmal Förderung im Stadtbezirksbeirat in Höhe von 10.000 Euro. Weitere Informationen.
dasKonzerts #5
In der Martin-Luther-Kirche soll im Rahmen der Konzertreihe von Vasily Ratmansky und Volker Sondermann ein Konzert mit elektronischer, experimenteller und improvisierter Musik stattfinden zu der auch getanzt werden kann. Der organisierende Verein beantragt eine Förderung in Höhe von 1.000 Euro. Weitere Informationen.
Verkaufsoffene Sonntage
Im kommen Jahr soll es im Stadtbezirk Neustadt drei verkaufsoffene Sonntage geben. Am 28. April 2024 anlässlich des Familienfestes auf der Hauptstraße, am 6. Oktober anlässlich des Herbstfestes auf der Hauptstraße. Und am 16. Juni anlässlich einer eventuell stattfindenden Republikgeburtstagsfeier der Bunten Republik Neustadt (BRN).
SPD wünscht einen Sprühbrunnen
Die Stadtverwaltung soll die Einrichtung von drei sogenannten „Cool Spots“ prüfen, schlägt die SPD Dresden-Neustadt vor. Das sollen Trinkwasserbrunnen mit Nebeldusche sein. Die SPD schlägt auch schon die Ort vor, die geeignet sein könnten: Spielplatz Louisengrün an der Louisenstraße, auf dem Alaunplatz, in der Umgebung der Scheune, am Bischofsplatz an der Tischtennisplatte oder am Spielplatz Schanzenstraße im Hecht-Viertel. Unfreiwillig gab es ein Sprühnebel-Experiment bereits vor 14 Jahren an der sogenannten bunten Ecke.
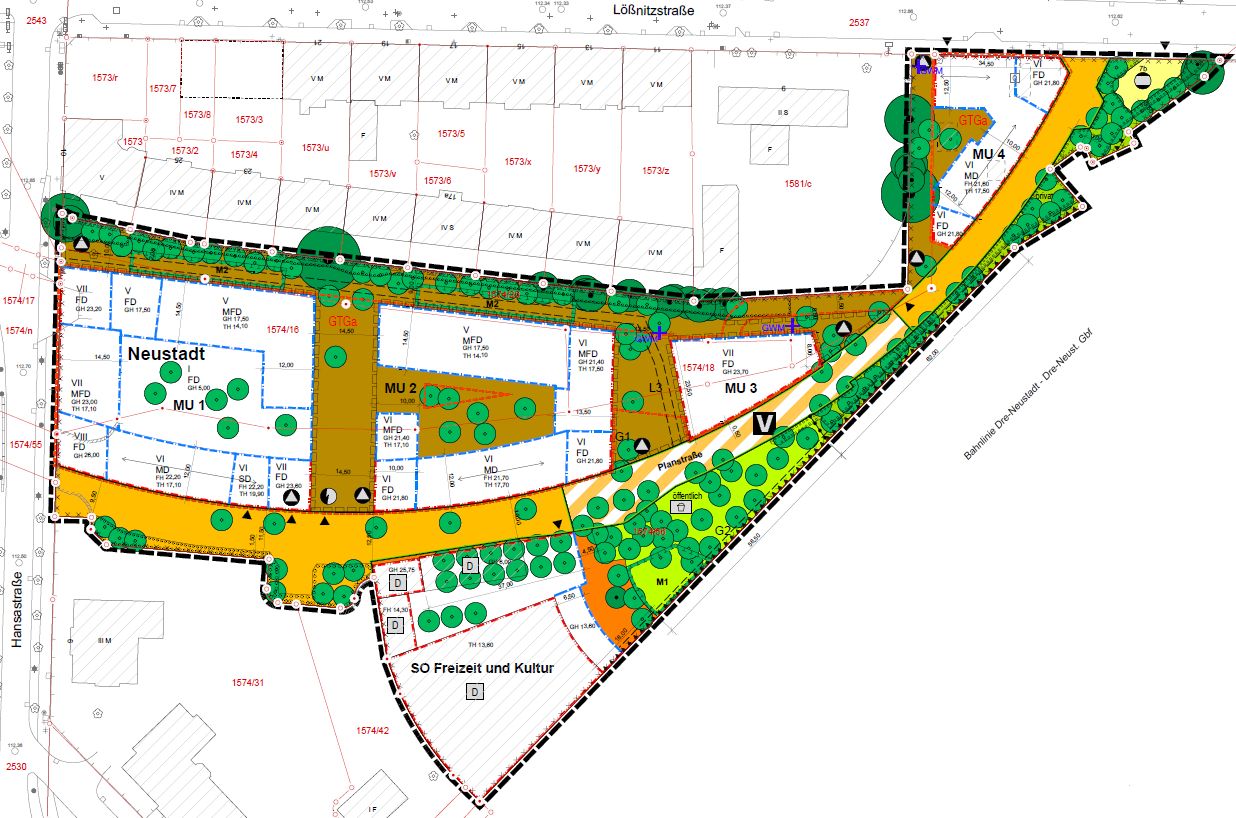
Bebauungsplan ehemaliger Gleisbogen Hansastraße
Zwischen Bahnhof Neustadt, Hansa- und Lößnitzstraße soll ein neues Wohn- und Bürogebiet entstehen. Die Pläne waren bis 16. Juli öffentlich ausgelegt, es gab einige Widersprüche. Nun muss in einem Abwägungsprozess beschlossen werden, wie es mit dem Bauprojekt weitergeht. Weitere Informationen.

FDP-Antrag: Fuß- und Radwegbeleuchtung am Elberadweg verbessern
Die FDP fordert die Verwaltung auf, die Fuß- und Radwegbeleuchtung am Dresdner Elberadweg zu verbessern bzw. schaffen. Insbesondere geht es um die Bereiche mit viel Fuß- und Radverkehr zwischen Carolabrücke, Waldschlößchenbrücke und Blauen Wunder sowie linkselbisch der Bereich zwischen Blauen Wunder und Laubegast und zwischen Ostragehege und Cossebaude sowie rechtselbisch zwischen Ballhaus Watzke und Marienbrücke. Weitere Informationen.
AfD-Antrag: Änderung der Satzung Straßenkunst
Die AfD beantragt den Stadtratsbeschluss vom 14. Juli 2022 aufzuheben und unter anderem die Satzung um folgenden Satz zu ergänzen: „Die Satzung Straßenkunst gilt nicht für Aufführungen mit Tieren oder das zur Schau stel-len von Tieren. Außerdem soll die Anzahl der Gesamtauftritte je Woche auf sieben beschränkt werden. Weitere Informationen.
AfD-Antrag: Gedenkorte sichtbar machen
Konkret geht es um das Gebäude in der Glacisstraße, in dem sich heute das Heinrich-Schütz-Konservatorium befindet. Dort befand sich zu DDR-Zeiten (konkret von 1977 bis 1987) ein sogenanntes Durchgangsheim für auffällig gewordene Jugendliche. Die AfD fordert nun, vertiefende Forschungen zu der Einrichtung in Auftrag zu geben und eine geeignete Form der Erinnerung zu finden. Die Zustände in diesem „Durchgangsheim“ beschreibt ein Augenzeuge in einem Bericht der Sächsischen Zeitung von 2013 sehr eindrücklich. Sehr interessant ist zu dem Thema auch das Werk von Christian Sachse „Ziel Umerziehung – Spezialheime in der DDR„.
SPD-Antrag: Zweckentfremdung von Wohnraum verbieten
Die Stadtverwaltung soll nach Willen der SPD eine Satzung erarbeiten, die eine Zweckentfremdung von Wohnraum in Dresden verbietet. Dazu soll in Neu- und Altstadt auch die Nutzung als Ferienwohnung gelten. Weitere Informationen.
















