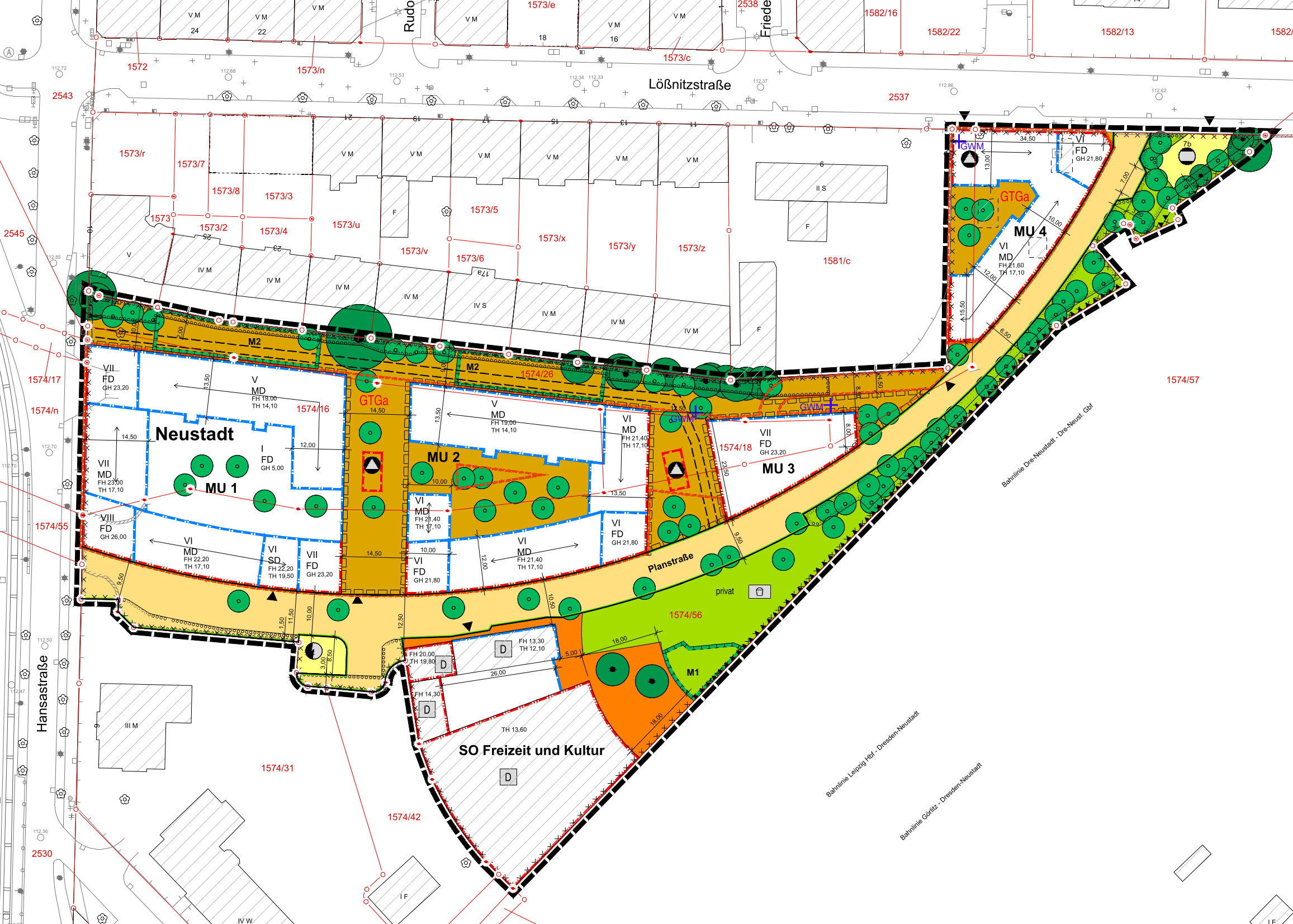
Vor rund vier Jahren wurden die Bebauungspläne für das Gelände zwischen Hansastraße, Lößnitzstraße und Bahnhof Neustadt vorgestellt. Dann wurden die Pläne ausgelegt, abgeändert und erneut vorgelegt. 2023 wurde dann die Baugenehmigung ausgereicht. Der ehemalige Investor, die Delitzscher Immvest Wolf GmbH, ist inzwischen Teil der Quarterback Immobilien AG geworden, die in und um die Neustadt einige Neubauprojekte realisiert.

Nicht gebaut wurde bisher jedoch auf diesem Gebiet. Bäume sind gefallen, das Gelände inklusive des Lokschuppens wurde eingezäunt, aber von einem Baubeginn ist bisher nichts zu sehen. Das trieb auch einige Stadtbezirksbeiräte um, in der Mai-Sitzung gab es dann eine kurze Mitteilung zu dem Thema. Der Vorhabenträger habe das Projekt an einen Endinvestor verkauft, der im Dezember 2023 jedoch vom Kauf zurückgetreten sei.
Etwas ausführlicher antwortet die Stadtverwaltung auf Nachfrage: „Die Baugenehmigungen für die Wohn- und Geschäftshäuser (Block A, B, C), das Wohngebäude Block D und eine Lärmschutzwand am Bahndamm wurden 2023 ausgereicht. Sie sind alle noch gültig. Für alle Vorhaben wurden auch bautechnische Nachweise bearbeitet und geprüft, die Prüfberichte liegen vor. Die Bauvorbereitung ist somit im Wesentlichen soweit fortgeschritten, dass mit dem Bau begonnen werden könnte. Der Landeshauptstadt Dresden ist nicht bekannt, dass bei Quarterback diese Absicht nicht mehr bestünde.“

Dies bestätigt auf Nachfrage auch ein Sprecher der Quarterback Immobilien AG. „Ja, Quarterback wird das Wohnviertel errichten“, so der Sprecher. Wann gebaut werde, sei derzeit allerdings unklar. „Nach wie vor gestaltet sich das Umfeld für Wohnungsneubau schwierig, insbesondere hohe Kosten für Bau und Finanzierung machen Neubauprojekte derzeit unwirtschaftlich“, so der Quarterback-Sprecher. Das Unternehmen erhoffe sich insbesondere durch die neue Bundesregierung Impulse für den Wohnungsneubau und könne erst in diesem Fall wieder Terminaussagen treffen. Ein Geländeverkauf sei derzeit nicht geplant.
In der Projektbeschreibung war auch die Revitalisierung des alten Lokschuppens vorgesehen. Dort sollte der Sport-Verein „Motor Mickten“ Räume beziehen. „Wir warten seit Dezember 2023 auf ein Signal, dass es weiter geht“, sagt Motor-Mickten-Präsident Steffen Tampe. Der Verein habe nach wie vor großes Interesse, in dem alten Lokschuppen Räume zu betreiben. Wie der Quarterback-Sprecher betont, sei eine Revitalisierung des Lokschuppens ohne das Neubauprojekt wirtschaftlich nicht darstellbar.

Der EZB-Leitzinssatz bewegt sich inzwischen wieder auf dem Niveau von Ende 2022. Außerdem hat die Bundesbauministerin Verena Hubertz (SPD) nun einen Bau-Turbo angekündigt. Die Grundsätze ihrer Politik fasste Hubertz in den drei Begriffen Tempo, Technologie und Toleranz zusammen. Tempo bedeute, dass Genehmigungsverfahren nicht länger als der Bau dauern dürften. Bei der Technologie sei einiges möglich: Stein auf Stein müsse nicht mehr sein. Die Ministerin sprach sich für serielles Bauen, die Nutzung von 3D-Druck und für die Verwendung von Holz auch im Hochhausbau aus. Toleranz sei auch sehr wichtig, wenn gebaut werden solle. Es gehe nicht mehr, das Bauen im eigenen Hinterhof abzulehnen, sondern es müsse in großem Umfang zur Ausweisung von Bauland, zu Aufstockungen und Nachverdichtungen kommen. Ein Gesetz zum Bau-Turbo soll noch vor der Sommerpause im Bundestag eingereicht werden.
Falls die Quarterback Immobilien AG mit dem Bau beginnen will, eins steht schon mal fest. Die Straße durch das neue Wohnviertel wird Josef-Burg-Straße heißen. Der Vorschlag des Stadtbezirksbeirates wurde von der Stadtverwaltung angenommen. Damit wird die Straße den Namen des in Dresden geborenen israelischen Politikers Yosef Burg tragen.



















Je später, desto besser. Das Viertel ist ja jetzt sowieso schon u.a. wegen der Neubauten auf der Friedenstraße im Mietspiegel aufgestiegen. Und hässlich ist es sowieso, und passt Null in unser Viertel…
Ein weniger charmanter Zeitgenosse als ich würde seine Antwort an dich, lieber Martin wohl so zusammenfassen: „Heul leise!“
Dresden braucht viel mehr solcher Projekte. Wir haben so viele Baulücken die es zuschließen gilt. Mehr Förderung, schnellere Genehmigungen und Unterstützung für Visionäre, die unsere Stadt mit modernen Ansätzen zur Blüte zurück führen. Das Projekt ist ein toller Ansatz, gut geplant und macht optisch viel her. Auch die Entscheidung für die Benennung der neuen Straße würde ich als äußerst klug und sinnvoll bezeichnen!
Vielleicht ergibt sich in letzter Sekunde noch eine Möglichkeit um unser Viertel lebenswert und grüner zu gestalten. Am heißesten Platz in Dresden Bedarf es weniger Beton sondern mehr grün und Gemeinschaftsfläche. Lückenbebauung kann auch umweltverträglicher gestaltet werden.
Wir, als Initiative Bogenviertel, hatten schon vor dem Baustart Veränderungen im Bebauungsplan bewirkt und wollen uns jetzt wieder aktiv stark machen für eine grüne Zwischennutzung oder andere Möglichkeiten der Um-/ Mitgestaltung.
Wer Interesse hat mitzuwirken kann sich gerne unter
initiative-bogenviertel@protonmail.com melden.