Anzeige

 Eisfabrik am 13. Februar in der Reithalle

Königsbrücker: Varianten 8.1 bis 8.4 im Vergleich

So sähe die Variante 8.1 aus mit Mittelstreifen als Querungshilfe - der Vorschlag kam seinerzeit von den Grünen.
So sähe die Variante 8.1 aus mit Mittelstreifen als Querungshilfe – der Vorschlag kam seinerzeit von den Grünen.
Ende Juni hatte das Straßen- und Tiefbauamt die Varianten 8.3 und 8.4 im Bauausschuss vorgestellt. Das sind die nach Ansicht des Amtes konfliktfreien Varianten der rot-grün-roten Forderungen nach einem schmaleren Ausbau. Diese sollen nun mit der alten und breiteren Variante 7 verglichen werden. Nun hat die Initiative „Königsbrücker muss leben“ um den Piraten-Politiker Martin-Schulte Wissermann erste Querschnitte veröffentlicht.

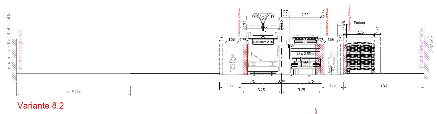
Das Problem mit dem Müllauto. Selbst wenn das den Radstreifen nutzt, käme die Straßenbahn nicht mehr vorbei.
Das Problem mit dem Müllauto. Selbst wenn das den Radstreifen nutzt, käme die Straßenbahn nicht mehr vorbei.

Die konfliktfreie Variante 8.3 ist nur unwesentlich breiter.
Die konfliktfreie Variante 8.3 ist nur unwesentlich breiter.

Variante 8.4 ist die Weiterentwicklung von 8.2
Variante 8.4 ist die Weiterentwicklung von 8.2

Die Variante 8.2 wurde von den Piraten ins Spiel gebracht, es ist die schmalsmögliche Ausbauvariante der Königsbrücker.
Die Variante 8.2 wurde von den Piraten ins Spiel gebracht, es ist die schmalsmögliche Ausbauvariante der Königsbrücker.

Zu den neuen Entwürfen wollen Linke, Grüne und SPD auf der morgigen Stadtratssitzung einen Eilantrag einbringen. Ziel wird sein, den Variantenvergleich nun endlich voran zu treiben. Weitere Infos zu dem Varianten-Problem im Neustadt-Geflüster vom 25. Juni 2015. Weitere Querschnitte und Zeichnungen auf königsbrücker-muss-leben.de

10 Kommentare

  1. Nicht noch mehr Varianten. Es wurde doch schon eine Variante (glaube 7.x) so gut wie genehmigt?
    Die sollen endlich mit dem Kasperletheater aufhören und einfach bauen!

  2. Schade: ich hätte mir ne begrünte Straßenbahntrasse gewünscht,- so wie vorm Japanischen Palais. Dazu links und rechts breite Radwege und Autos werden komplett verbannt. Sollen sie doch drumherumfahren!

  3. Ok, die neuen Varianten sind also ca. 2m breiter als der Bestand (der Preis, den man für vernünftige Radverkehrsanlagen zahlen muss). Dafür vollständige Mischung Straßenbahn + Kfz-Verkehr (wie es in der Praxis schon heute größtenteils gefahren wird).

    Bin gespannt, ob das auch in den weiteren Prüfungen „funktioniert“…

    Weiterhin funktioniert die Straße im Bestand eben auch nicht, weil an liegengebliebenen Fahrzeugen/ Müllautos die Bahn nicht vorbeikommt. Hier zu sagen, „es sei ja bislang auch kein Problem“, ist doch Quark: wenn man schon Geld in die Hand nimmt, dann sollten Probleme auch beseitigt werden.

    Was aber gesagt werden muss: das reflexartige Einhacken auf die Verwaltung (Vorwurf der Verschleppung) erscheint mir ungerechtfertigt. Immerhin wurden vollständige Lagepläne beauftragt, welche nicht mal eben innerhalb von wenigen Tagen zu machen sind.

    Das Gebärden diverser Politiker ist in der Frage eigentlich nur nervig/ peinlich…

  4. Als täglicher Nutzer der Linie 7 und teilweise auch Linie 8 auf dem betroffenen Abschnitt ist für mich die Variante eigenem Gleis für die Bahn eigentlich alternativlos.
    Es ist schon ein Unterschied, ob eine Bahn an einem Pulk mit Autos vorbeifahren kann, so wie jetzt, oder ob die sich hinten anstellen muss, wie in den Entwürfen (Wer das nicht nachvollziehen kann: Einfach mal zur Rushhour mit der Straßenbahn von der Neustadt über die Marienbrücke fahren…).
    Aktuell kommt die Bahn sehr gut durch, bei getrennten Spuren. Alles andere wäre, meiner Meinung nach, ein Rückschritt.

  5. @Filofax: vermutlich wohnst du nicht in der Neustadt?
    Anonsten kann ich nicht verstehen warum du 10000 Autos proTag da durch jagen willst die ansonsten die Köni genutzt hätten?

  6. @ Zackbäm: Als täglicher Nutzer der 7/8 mache ich eher die Erfahrung, dass das zusammen in einer Spur fahren ganz gut klappt. Natürlich wäre es besser, wenn jeder seine eigene hätte – und genau da sind wir ja am Knackpunkt: was ist tatsächlich wichtiger?

  7. Es wird so langsam zur Qual diese ewige zerreden dieser Straße.

    Ich kann es nur immer und immer wieder wiederholen: Baut doch einfach irgend-was OHNE Kopfteinpflaster und MIT Asphalt.

    Alles andere ist doch wirklich sooooo egal wie der berühmte Sack Reis.

    Der Zustand dieser wichtigen Straße ist für eine Stadt wie Dresden einfach nicht tragbar.

  8. „Es wird so langsam zur Qual diese ewige zerreden dieser Straße.“ – Ist diese Straße am Ende von der zerreden so holprig?

    „Ich kann es nur immer und immer wieder wiederholen: Baut doch einfach irgend-was OHNE Kopfteinpflaster und MIT Asphalt.“

    – Philipp, bis jetzt hieß es doch von Deiner Seite nur immer und immer und immer wieder: „Ich kann es nur immer wieder sagen: Baut doch bitte IRGENDWAS, aber baut doch endlich was!“ 25.05.2015 und „Die sollen doch einfach auf der Königsbrücker IRGENDWAS bauen. Alles ist besser als das was man jetzt auf dieser Holperpiste hat.“ 30.05.2015

    – Und nun PLÖTZLICH bringst Du diese Einschränkungen MIT dem Asphalt und OHNE das Kopfteinpflaster ins Spiel!? – Und da wunderst Du Dich, dass sich der Ausbau immer und immer weiter verzögert?!?!?!???!!!??!!?! – Da kann ich echt immer und immer und immer wieder nur mit dem Kopf schütteln!!! Immer wieder.

  9. Ich geb ja zu, dass ich nicht vom Fach bin. Und ich bin auch nicht so schlau wie wissenschaftstheoretischen Ideologiewissenschaftler, die die Praxis aus gutem Grund verabscheuen. Aber eine fundamentale Erkenntnis hat mich in eine Schockstarre versetzt:
    Auf der Königsbrücker ist kein Platz um Dinge hinzubauen, für die kein Platz ist.
    Kein Platz für Grünstreifen dort, wo sowieso kaum ein Mensch die Straße quert. Grün gibts zur Genüge auf dem Alaunplatz, wunderschön aufgebuntet mit allerlei Müll von Umweltschützer. Und Kinder sollten die Ampel benutzen.
    Kein Platz für 2 übelst breite Radwege. Radfahrer, die keinen Bock haben, sich in soziale Spielregeln, soziale Rücksichtnahme und soziale Gegebenheiten zu integrieren, können über die Förstereistraße rasen und rüpeln. Radfahrer, die es einfach nur eilig haben, fahren sowieso dort lang.
    Kein Platz für separate Bahngleise. Highspeed auf Schienen gibt’s im ICE.

    Alternativ könnte man sämtliche Bäume und einige Häuser wegsprengen. Da kommen aber sofort wieder die gleichen empörten Schreihälse und protestieren. Ein Schuldiger dafür, dass die Welt so anders ist als in der Märchenfibel versprochen, wird sich schnell finden lassen.
    Also lassen wir die Köni am Besten so, wie sie ist. Denn sowieso bereits morgen wird der Erste diese Weltenretter zum Auto greifen. Weil er_innen will? Weil er_innen muss? Weil er_innen kann? Dann wird er_innen sofort die neue, grüne Spielstraße wegbomben. Weil die so nazi ist. So Herrenmensch. So diskriminierend. So Kackscheiße…

  10. @Karsten, also gute Laune sieht anders aus. Ich denke mir immer, wenn ich über die Königsbrücker holpere: „Du mußt ja nicht auf Arbeit gehen!“

Ergänzungen gern, aber bitte recht freundlich.

Deine E-Mail-Adresse wird nicht veröffentlicht. Erforderliche Felder sind mit * markiert